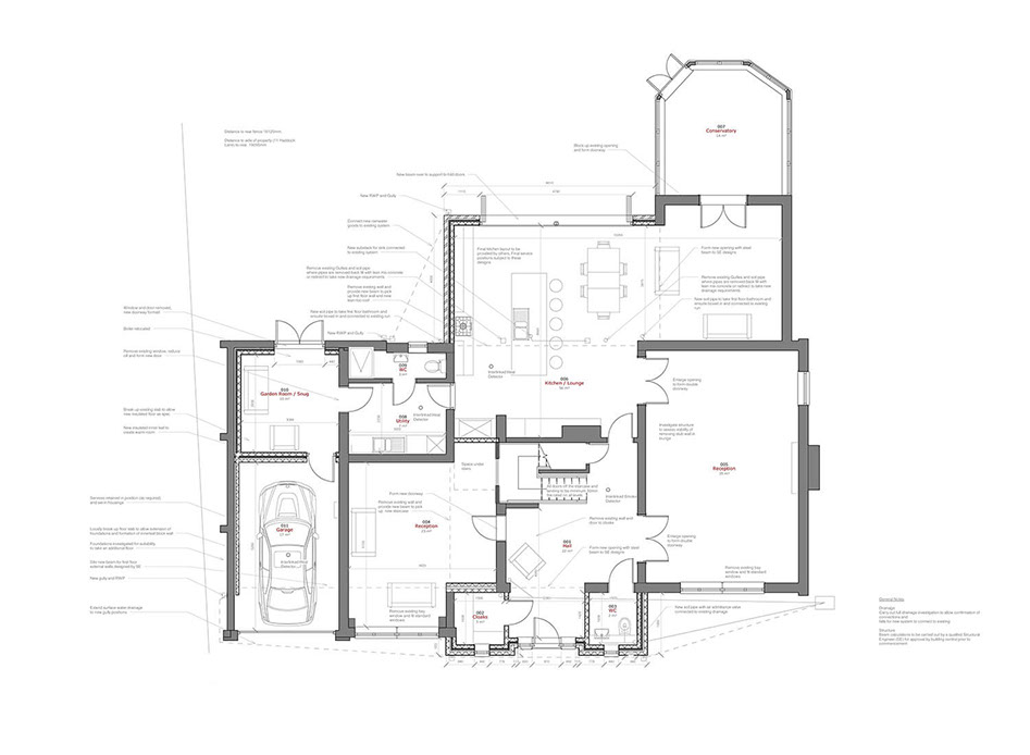
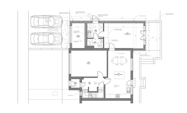
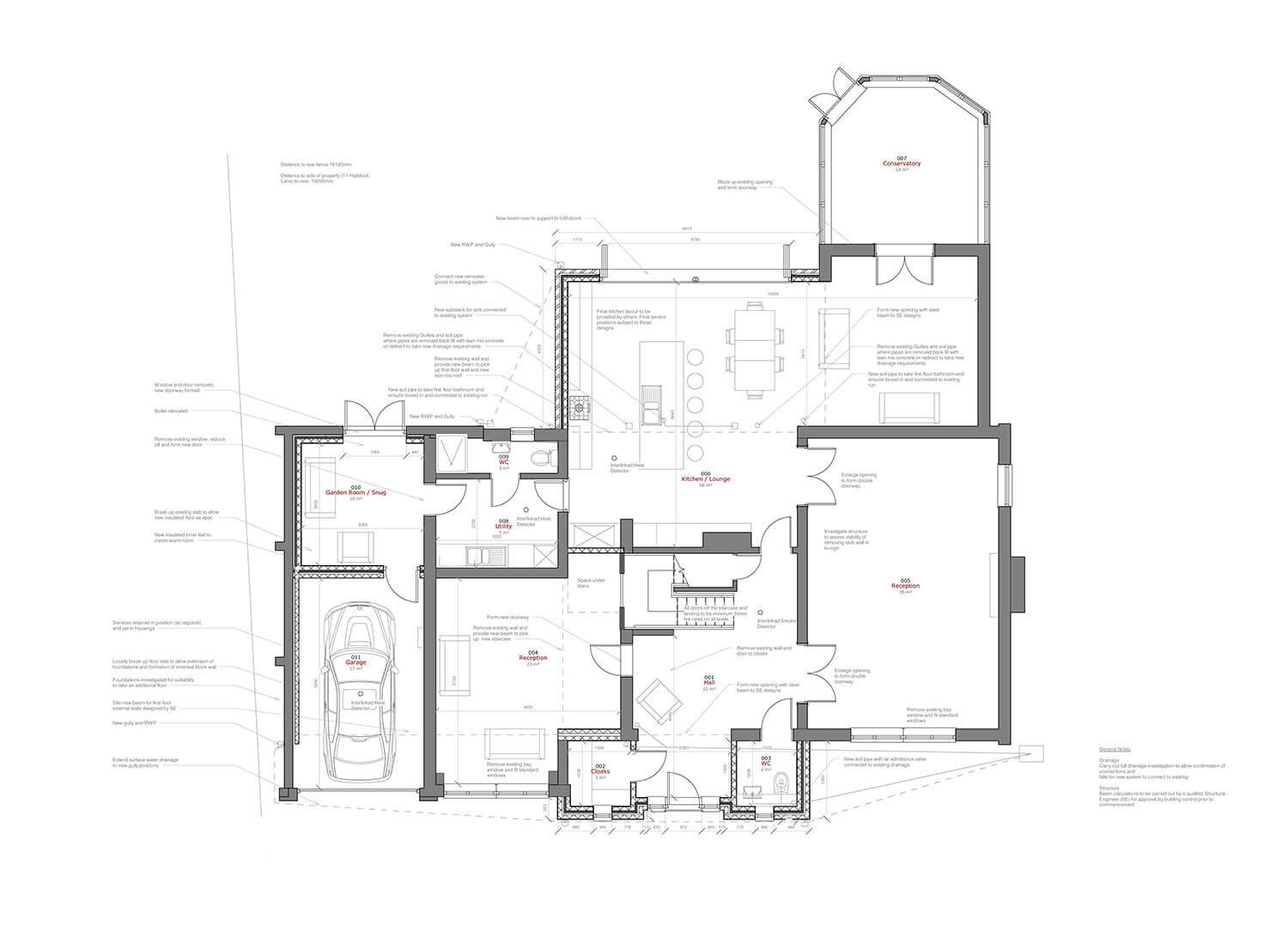
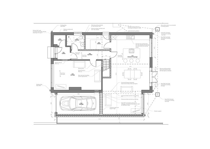
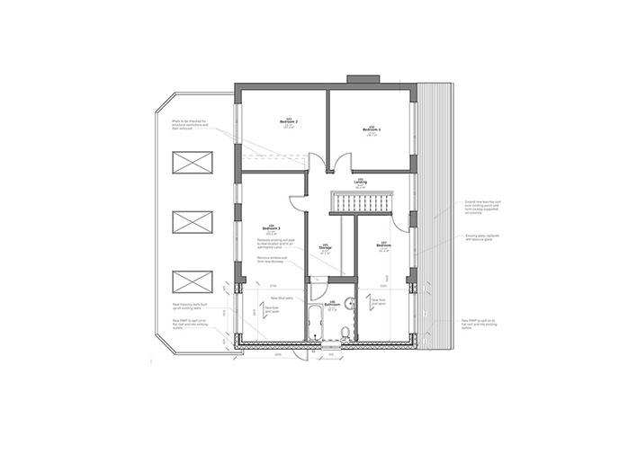
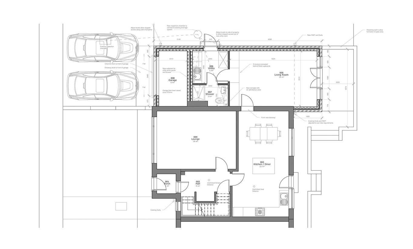
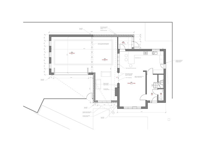
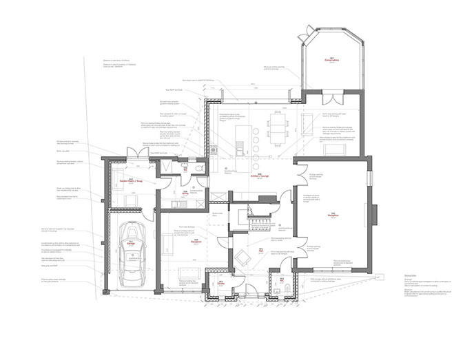
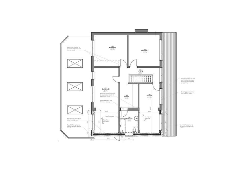
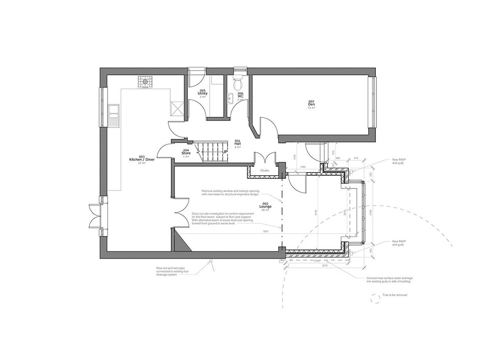
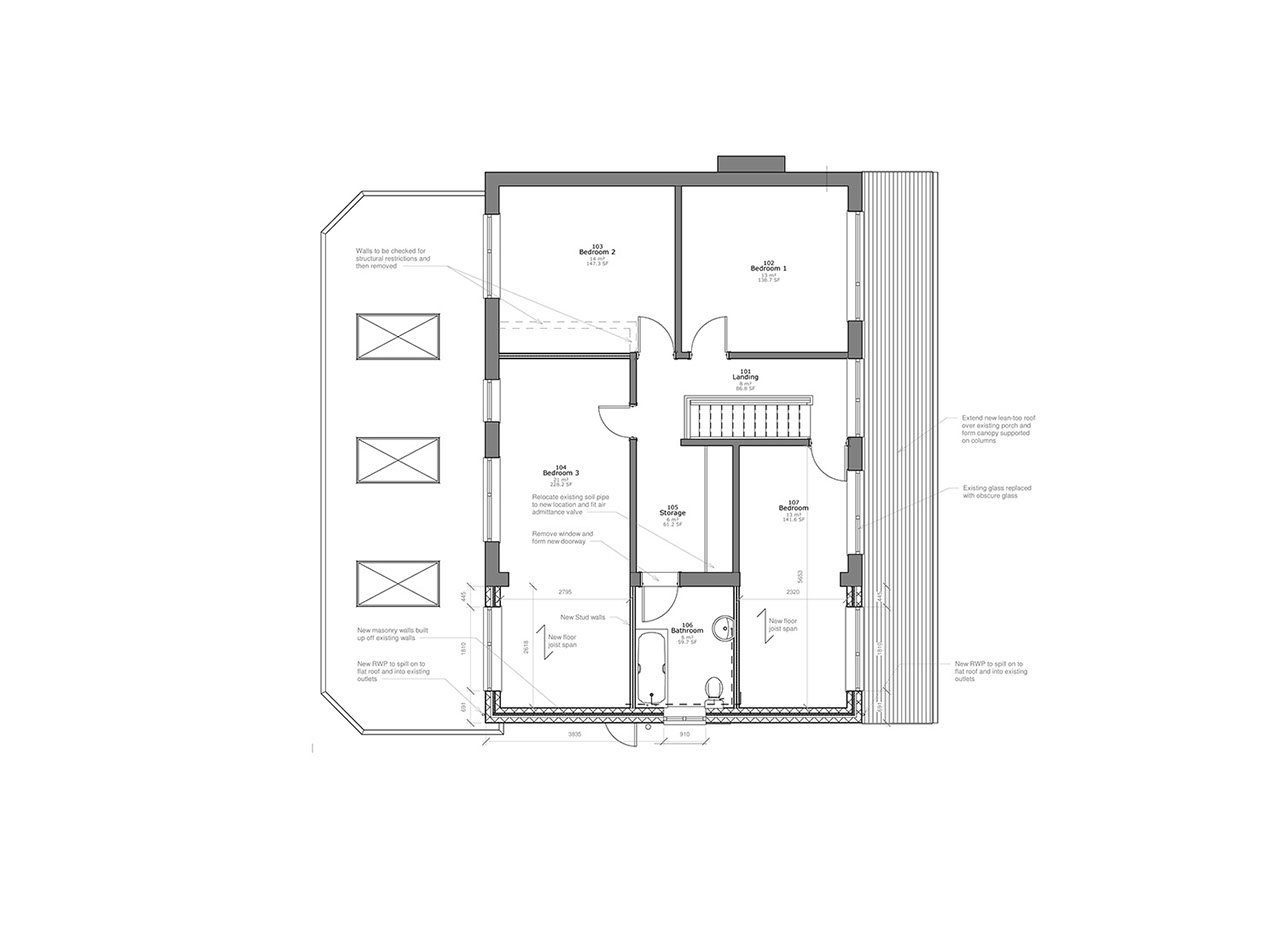
House Extensions

If your property no longer fulfils your requirements, we will work with you to re-shape and extend your home to fulfil its potential.

 

We work on all types of residential properties including terraced, semi-detached and detached properties along with those in conservation or greenbelt areas.

 

Typical extensions include:

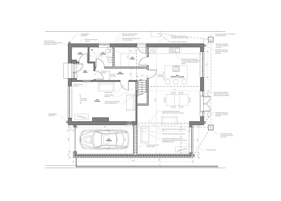
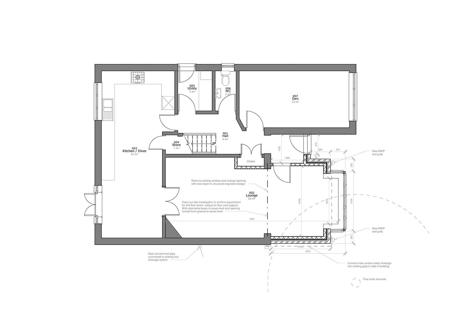
large extensions covering single or multiple storey and wrap around developments

larger homes and upward homes extensions

loft conversions and dormers

small lean-too extensions, including permitted development

conservatories and orangeries

outbuildings and garden rooms

porches

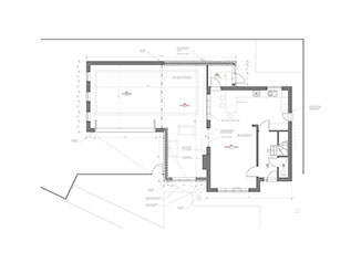
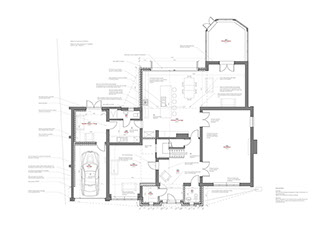
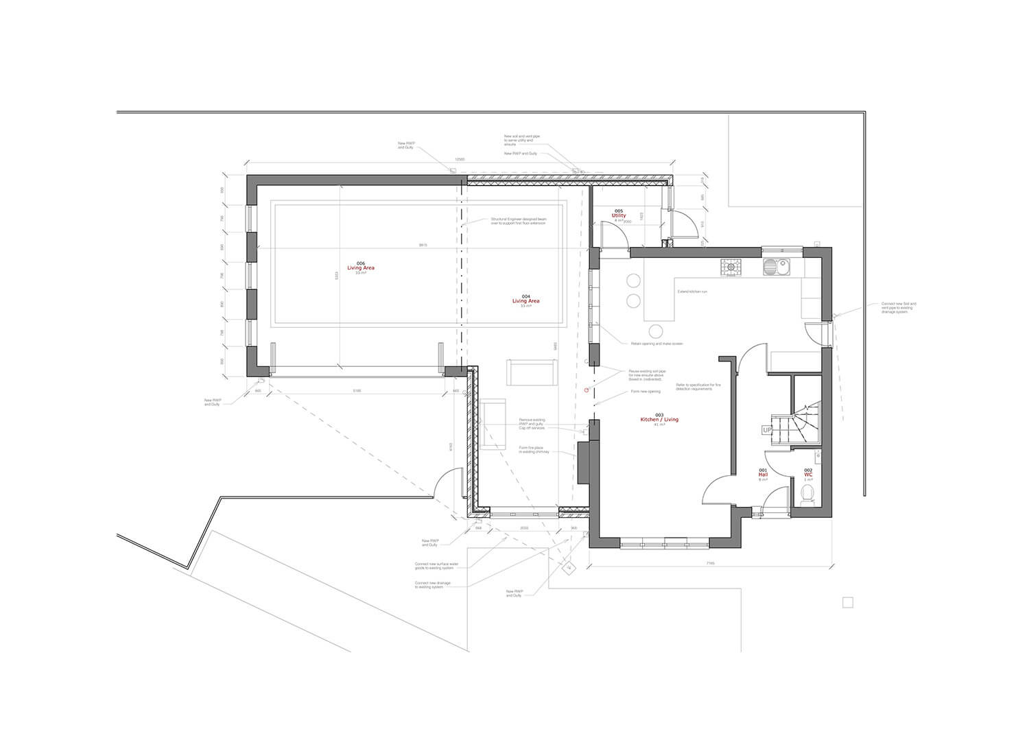
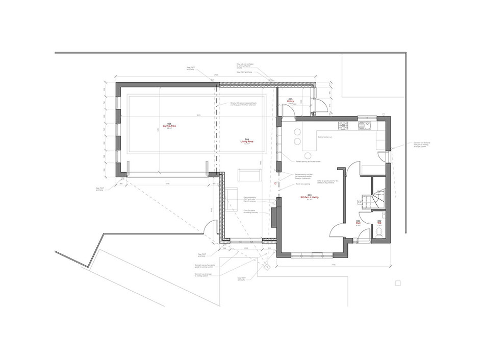
Windy Harbour

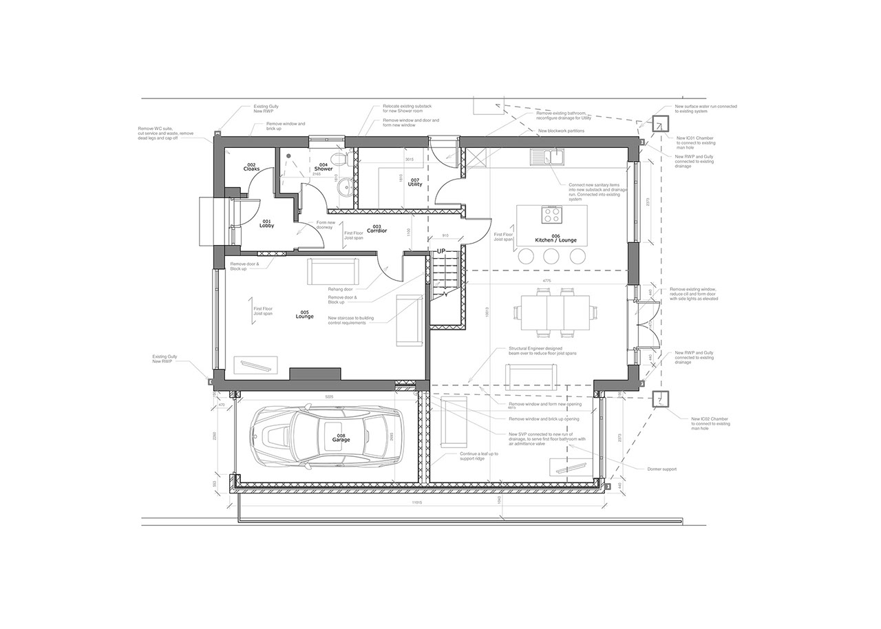
Water Tower

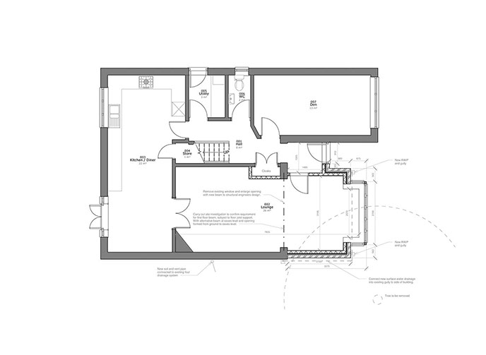
Sandray Close

 

We offer a free initial phone consultation which will cover:

 

what you are looking to do

the potential feasibility from a planning perspective

the planning applications that may be required from the Council and the planning process

the service you would receive from us

other areas you will need to consider which are outside of our service e.g. building inspectors and structural engineers

any additional questions you may have

 

We will follow the consultation up with a no-obligation fee proposal.

 

For more information click on Knowledge or use this miniguide from the Planning Portal to find out more about house extensions, planning, building regulations and more.

 

To book a consultation, please click here to request a call back.

Caithness Drive

Cornergate

Loen Crescent

To book a consultation, please click here

© 2025 S H Wilkinson Architects Ltd. All Rights Reserved.

Terms and Conditions

Privacy Policy

Cookie Policy

House Extensions

If your property no longer fulfils your requirements, we will work with you to re-shape and extend your home to fulfil its potential.

 

We work on all types of residential properties including terraced, semi-detached and detached properties along with those in conservation or greenbelt areas.

 

Typical extensions include:

large extensions covering single

or multiple storey and wrap

around developments

larger homes and upward

homes extensions

loft conversions and dormers

small lean-too extensions,

including permitted development

conservatories and orangeries

outbuildings and garden rooms

porches

Windy Harbour

Water Tower

Sandray Close

We offer a free initial phone consultation which will cover:

 

what you are looking to do

the potential feasibility from

a planning perspective

the planning applications that may

be required from the Council and

the planning process

the service you would receive

from us

other areas you will need to

consider which are outside of our

service e.g. building inspectors

and structural engineers

any additional questions you may

have

 

We will follow the consultation up with a no-obligation fee proposal.

 

For more information click on Knowledge or use this miniguide from the Planning Portal to find out more about house extensions, planning, building regulations and more.

 

To book a consultation, please click here to request a call back.

Caithness DRIVE

Cornergate

Leon Crescent

To book a consultation, please click here