Residential New Builds

Ainsworth

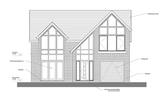
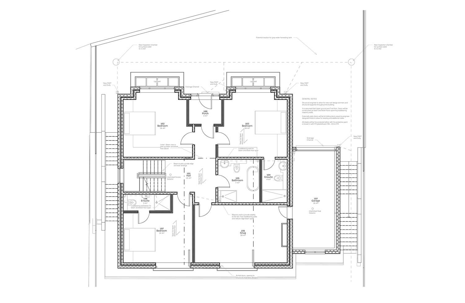
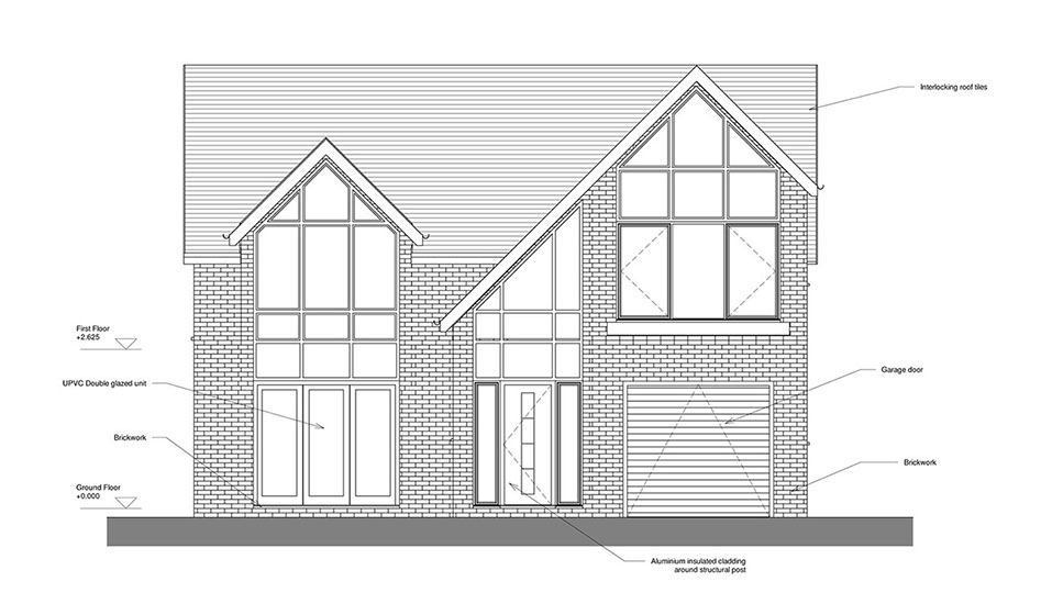
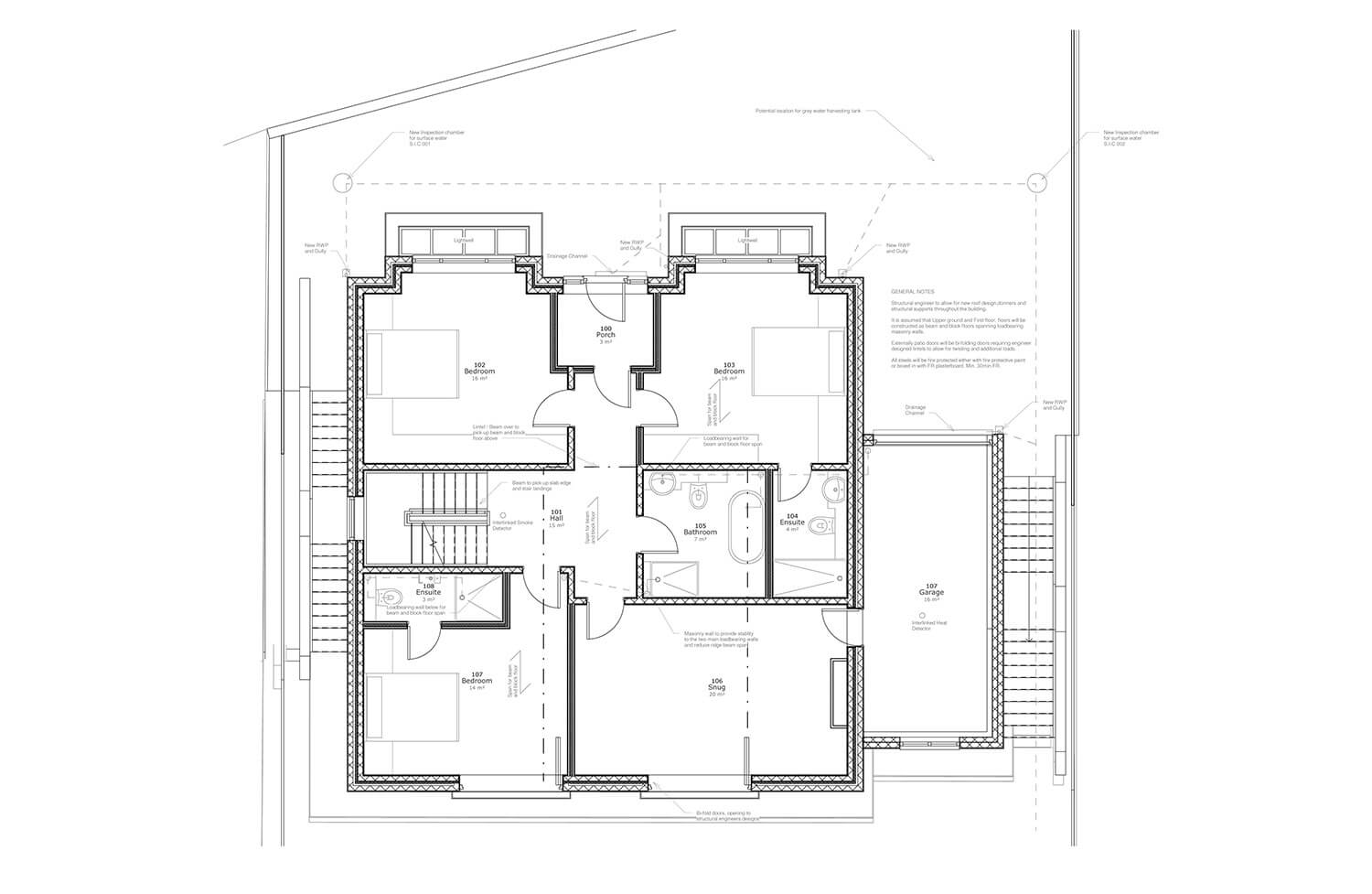
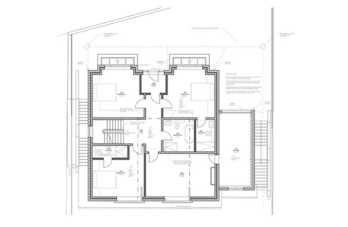
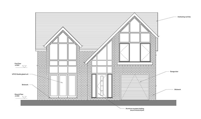
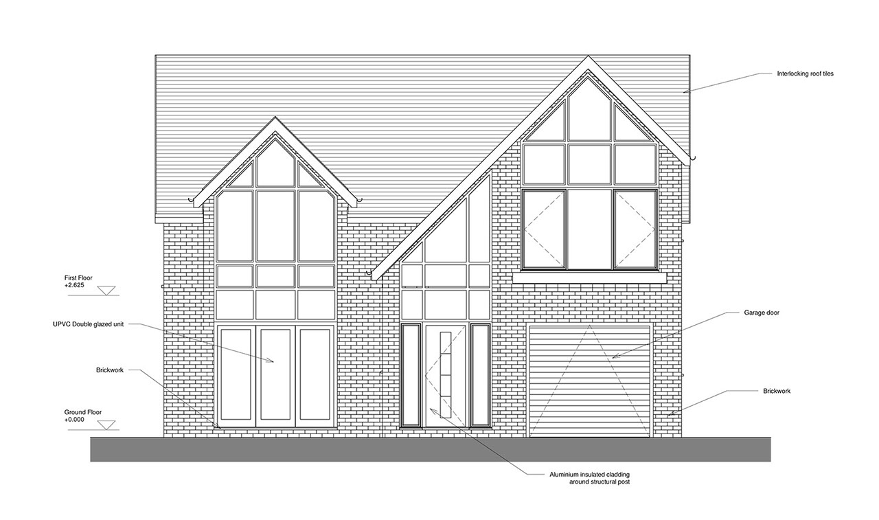
Bespoke House

 

Whether you have an empty plot or one that needs a replacement property, we will work with you to incorporate your ideas and aspirations, taking time to carefully design your perfect bespoke home: one which considers and meets yours needs and compliments its surroundings.

Hilltop

Housing Schemes

 

We have experience of designing multiple housing schemes, from select developments of several houses or apartments to larger developments of low, mid and luxury range properties. We take care and consider the best design solution which will balance your budget, meet the needs of the end clients and considers the neighbouring properties and the community.

Okell

To book a consultation, please click here

© 2025 S H Wilkinson Architects Ltd. All Rights Reserved.

Terms and Conditions

Privacy Policy

Cookie Policy

Residential

New Builds

Ainsworth

Hilltop

Okell

To book a consultation, please click here